以剛玉、碳化硅為基體,添加鋼纖維,防爆纖維的低水泥澆注料,該超強高耐磨澆注料產品體積密度高、強度大,具有足夠的耐腐蝕和耐磨性能。解決了大型回轉窯三次風管彎頭的材料問題。
背景:某廠5000t/d預分解窯(Φ4.8mx74m)的三次風管彎頭內襯不僅承受800~1200℃工作溫度條件下的嚴重堿腐蝕,而且還要經受飽含大量細顆粒熟料的高速三次風氣流的沖刷,所處環境工況惡劣,損壞嚴重,常常為此影響生產。
三次風管彎頭內襯所用的耐火材料經過了多次演變:原設計為高鋁澆注料,使用時間約為1個月,之后改為莫來石剛玉澆注料,使用時間約為2個月,后采用HMS高耐磨磚與莫來石剛玉澆注料組合框架結構,使用時間也僅能維持4個月。每當管壁出現隱患,不得不采用“打包箱”等應急措施,以勉強維持生產運轉,彎頭內襯材質始終成為事故隱患。為保證生產正常運轉,必須選用合適的材質作彎頭內襯。
剛玉,碳化硅為基體的超強高耐磨澆注料的性能及增強防爆措施
鑒于寧國水泥廠5000 t/d預分解窯的三次風管彎頭的工況及實際應用現狀,我們雙方作了多次技術交流、分析與研究,最終確定選用剛玉和碳化硅為基體、添加鋼纖維的低水泥澆注料作內襯。
性能
剛玉、碳化硅為基體的低水泥澆注料是以超微粉與高效外加劑巧妙使用、粒度組成精細配制的新一代澆注料,它具有高密度、低氣孔、高強度、低磨損、耐熱震和抗侵蝕等特點。
剛玉硬度大(硬度9),熔點高(熔點2050℃),化學性質穩定,對酸、堿都有良好的抵抗性;碳化硅也硬度大(硬度95),熔點高(分解溫度3400°),即使在氫氧酸中也完全不溶解。我們以剛玉、碳化 硅作基體骨架,從而確保了澆注料具有體密高、強度大的特點,使產品具有足夠的耐腐蝕性和耐磨性能。
在改善上述材質為基體骨架的同時,我們又仔細地考慮了作為基質的材質,我們以充分電熔燒結的優質原料細粉與超微粉,按合適的配比組合成基質,從而保證基質料在高溫下充分發揮連接、膠結骨料的作用,有效地充填骨料孔隙,顯著地改善材料的高溫性能。
表1為5000t/d窯的三次風管彎頭傳統用料及超強高耐磨澆注料的性能對比。
表1傳統用料及超強耐磨澆注料的性能對比

注:為了模擬工作狀態,我們選擇1300℃×10h。
添加鋼纖維強化澆注料性能
鋼纖維可以顯著地提高澆注料的抗折強度,改善抗熱震性能、沖擊性能和耐磨性能。資料表明,在澆注料中加入1 %鋼纖維可使燒后抗折強度提高40%~120%,剛玉質澆注料中,加入1%鋼纖維,10次冷熱循環后的抗折強度僅損失10% ~ 30%,而未加鋼纖維的同材質的抗折強度損失達40% ~ 60%,抗折強度損失率愈低,抗熱震性能愈好。鋼纖維可以抑制熱應力引起的裂紋的擴展,而且澆注料基體與鋼纖維的熱膨脹系數的差異形成的微細裂紋也可以抵消熱應力產生的大裂紋擴展的能量。當然,在不同的工作溫度,應選用合適的鋼纖維(表2),包括加入量。
添加防爆劑改善施工體質量及烘烤質量
表2 耐熱鋼纖維主要參數

低水泥澆注料是高密度、低氣孔材料,所以施工體水分的排除尤要當心,處理不當會造成施工體炸裂。尤其在作業條件限制時,比如,烘烤時間不能保證時,這類問題的考慮更為重要。
我們選用的某種防爆纖維(直徑30um,長度3 mm)在干態下和耐火材料有很好的分散性;在濕態下又表現出很強的柔和性,在施工體內形成無定向分布的網狀結構,并起到微細配筋作用,使施工體抗沖擊,耐拉伸,提高了整體強度。當烘烤溫度不斷提高,纖維軟化、收縮、熔化、碳化,形成成千上萬條的細長微孔,將水與水蒸汽排出,減少內部應力,從而防止了施工體出現爆裂現象。
優化的施工方案
科學施工是保證材料性能不可忽視的重要環節, 是貫徹設計意圖的關鍵環節,也是施工體長壽的重要基礎。
折疊式內村設計
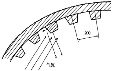
為緩沖帶細熟料顆粒的高速三次風氣流對彎頭內襯的沖刷力,將內襯設計成圖1的折疊式樣,從而使氣流頻繁轉向,沖刷力由強變弱。

圖1 折疊式樣的內襯
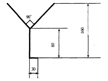
金屬錨固件及布置
超強高耐磨澆注料施工厚度為230mm,在管壁上按200mmx200mm間距均勻焊接錨固件,錨固件材質為Φ16mm的1Cr25Ni20Si2耐熱鋼筋所制作,呈“丫”型,必須滿焊,并在高溫部位約120 mm高度纏繞絕緣布膠帶包裹錨固件,以避免金屬件膨脹產生應力,引起施工體龜裂開裂,錨固件形狀如圖2。
澆注施工
我們采用強制式攪拌機混練,并嚴格控制加水量穩定在4%〜5%左右,既保證一定的流動性,又保證了施工體的低水分、高密度。釆用振動澆注,澆注料加入模殼內,層高為500mm左右,加入2/3高度左右的欲注料,開始插入振動棒,然后邊振動,邊加料,待平齊后再重復上述施工。

圖2 錨固件形狀
管道頂部采用割孔加料施工,施工完畢再用鋼板將割孔封閉。
養護、烘烤
施工后帶模自然養護24 h,后隨生產啟動,熱風干燥至600℃x 18 h后,即可投入生產使用。
結束語
該廠5000t/d預分解窯的三次風管彎頭內襯自2005年2月4日上午點火至今(2005年11 月1日)已近9個月,未出現任何異常狀況,更未因風管彎頭內襯磨損而影響生產運轉。實踐證明,選用剛玉、碳化硅基體的添加鋼纖維的低水泥澆注料, 該超強高耐磨澆注料初步解決了風管彎頭內襯的磨損問題。在今年9月份的停窯檢修過程中,我們專門檢查了彎頭部位,發現雖無掉塊現象,但表面堿腐蝕嚴重。因此,如何增強材料的抗堿侵蝕能力,以進一步提高壽命,還有大量的工作要做。