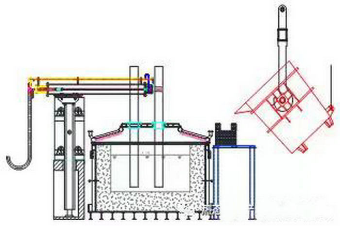
礦熱爐工藝的核心原理基于玻璃行業的熔爐法,并針對熱態渣的特性進行了結構、耐火材料、加熱系統等優化設計,熱態硅錳渣的料性與玻璃相比具有很大的差異性,主要有如下四個方面:(1)料性比較短,成型溫度高,出料口熔體溫度一般大于1300℃;(2)對耐材的侵蝕非常嚴重,常規的電熔磚、剛玉磚在使用過程中爐齡很難超過一年,尤其是渣線波動范圍的三相界面處;(3)易析晶,由于渣的成分比較復雜,溫度略低便很容易析晶,尤其在熔爐內的邊角區域,析晶層很難再次熔化,導致熔爐內的容積變小,熔體質量降低,降低熔化率;(4)玻璃化能力比較弱,需要很長的熔化時間或較高的熔化溫度才能有效的達到產品所需要的玻璃化程度。熔爐工藝從熔爐結構、電極布局、耐火材料及功能上進行調整,完全針對于熱態硅錳渣的料性進行熔制,同時熔爐工藝采用磚縫風冷的方式冷卻,因此噸產品能耗也最低,電極采用金屬電極,壽命與爐齡同步,可達2~4年,大大的降低了維護的勞動強度和運行成本。

熔爐大修周期的長短對工廠效益的影響至關重要,大修周期最少要達到2年以上,從目前的工程化水平來看,能夠超過3年甚至更長的爐齡。除了結構設計因素外,耐材的選型是決定爐齡的首要因素,由于熱態硅錳渣成分波動較大,組成復雜,低熔點氧化物含量比較高,且渣中含有的S、TiO2等成分在高溫下的化學反應比較激烈,對耐火材料的侵蝕相當嚴重,尤其是液面線、流道、拐角、窯坎、上升道等部位尤為明顯。玻璃行業熔爐常用到的Al2O3和AZS兩種耐火材料針對熱態硅錳渣熔體的抗侵蝕效果均不理想,爐齡基本上在8~12個月,而不含玻璃相的高致密型抗渣耐材則使用效果非常顯著,制造過程中經過高溫燒結后,微觀結構均勻,長期接觸玻璃液時變質層很薄,侵蝕形式屬于微觀平面侵蝕,但價格較高,因此選擇合適的該型耐材牌號有利于兼顧爐齡和投資的均衡。
熔爐工藝在熱態渣生產礦棉方面已經完成2萬噸工程化中試,中試目標超額實現,主要技術問題已解決,該工藝已經具備規模化推廣的條件,主要關鍵技術包括如下五個方面:
(1)熔爐耐火材料選型、配置:從硅錳渣的成分和料性出發,系統研究各類條件下硅錳渣對不同耐火材料的影響,使得耐材在滿足抗侵蝕性的同時,降低耐材的成本,并對其配置進行研究。
(2)熔爐結構設計:研究連續穩定運行狀態下,熔爐各部位耐火材料侵蝕、溫度控制及變化等,進行有針對性地熔爐系統結構設計,從而提高熔爐的安全性,提高爐體整體的抗渣侵蝕性,保證硅錳渣熔體在熔爐內的流動更加順暢,制備的熔體成分更加均勻。